[问答题]

计算题:计算如图所示弯曲件的毛坯长度,保留1位小数,π=3.14(不考虑板料中性层位移因素)。

参考答案与解析:

相关试题

计算题:计算如图所示的冲裁力的大小,计算精度保留小数点1位。(材料的抗剪强度T=

[问答题] 计算题:计算如图所示的冲裁力的大小,计算精度保留小数点1位。(材料的抗剪强度T=248MPa,1公斤/毫米2≈10MPa)

  • 查看答案
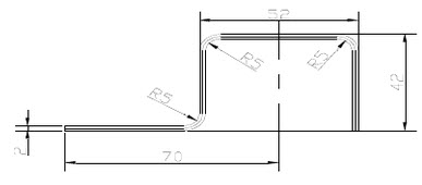
  • 计算题:直角形收边零件(如图所示),计算展开料宽度和长度。

    [问答题] 计算题:直角形收边零件(如图所示),计算展开料宽度和长度。

  • 查看答案
  • 计算题:直角形零件(如图所示),计算展开尺寸。

    [问答题] 计算题:直角形零件(如图所示),计算展开尺寸。

  • 查看答案
  • 计算题:如图所示,求合力R?

    [问答题] 计算题:如图所示,求合力R?

  • 查看答案
  • 计算题:计算如图所示材料为Q235钢板冲裁件的质量。

    [问答题] 计算题:计算如图所示材料为Q235钢板冲裁件的质量。

  • 查看答案
  • 计算题:计算CO的密度为多少?(C:12,O:16,保留2位小数)

    [问答题] 计算题:计算CO的密度为多少?(C:12,O:16,保留2位小数)

  • 查看答案
  • 计算题:用理论公式计算图所示多角弯曲的毛料展开长度。

    [问答题] 计算题:用理论公式计算图所示多角弯曲的毛料展开长度。

  • 查看答案
  • 计算题:试计算如图所示电路中B点的电位VB。

    [问答题] 计算题:试计算如图所示电路中B点的电位VB。

  • 查看答案
  • 计算题:用经验计算公式计算图所示多角弯曲的毛料展开长度。

    [问答题] 计算题:用经验计算公式计算图所示多角弯曲的毛料展开长度。

  • 查看答案
  • 计算题:要求弯曲如图所示零件:其中t=4毫米,r=15毫米,α=120°,Lr=

    [问答题] 计算题:要求弯曲如图所示零件:其中t=4毫米,r=15毫米,α=120°,Lr=50毫米,L2=80毫米。试求:落料长度尺寸?

  • 查看答案
  • 计算题:计算如图所示弯曲件的毛坯长度,保留1位小数,π=3.14(不考虑板