


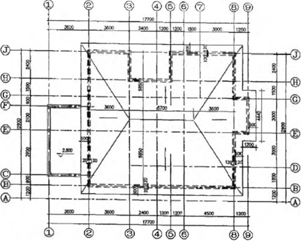
图3-28(3) 屋顶平面图(1:100)

图3-28(4) 南立面图(1:100)

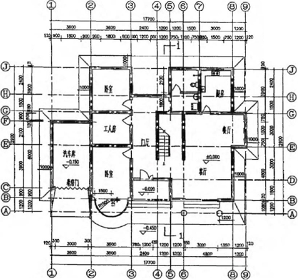
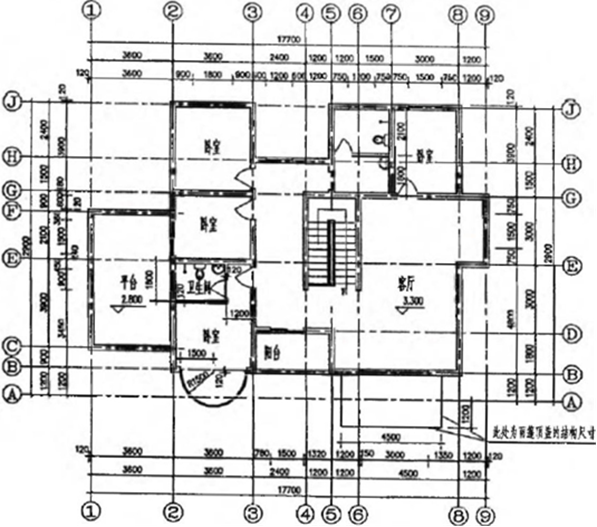
[问答题]第五题 背景资料:某别墅部分设计如图3-28(1)~3-28(5)所示。墙体除注明外均为240mm厚。坡屋面构造做法:钢筋混凝土屋面板表面清扫干净,素
[问答题]第五题 背景资料:某别墅部分设计如图3-28(1)~3-28(5)所示。墙体除注明外均为240mm厚。坡屋面构造做法:钢筋混凝土屋面板表面清扫干净,素
[问答题]第五题 背景资料:某别墅部分设计如图3-28(1)~3-28(5)所示。墙体除注明外均为240mm厚。坡屋面构造做法:钢筋混凝土屋面板表面清扫干净,素
[问答题]某别墅部分设计如图3-15~图3-19所示。墙体除注明外均为240mm厚。坡屋面构造做法:钢筋混凝土屋面板表面清扫干净,素水泥浆一道,20mm厚1:3
[问答题]某别墅部分设计如图3-15~图3-19所示。墙体除注明外均为240mm厚。坡屋面构造做法:钢筋混凝土屋面板表面清扫干净,素水泥浆一道,20mm厚1:3
[问答题]第三题 背景资料:某小高层住宅楼建筑部分设计如图3-24所示,共12层,每层层高均为3m,电梯机房与楼梯间部分凸出屋面。墙体除注明者外均为200mm厚
[问答题]第三题 背景资料:某小高层住宅楼建筑部分设计如图3-24所示,共12层,每层层高均为3m,电梯机房与楼梯间部分凸出屋面。墙体除注明者外均为200mm厚
[问答题]第三题 背景资料:某小高层住宅楼建筑部分设计如图3-24所示,共12层,每层层高均为3m,电梯机房与楼梯间部分凸出屋面。墙体除注明者外均为200mm厚
[单选题]某钢筋混凝土不上人屋面挑檐剖面如图所示,屋面板混凝土强度等级采用C30,屋面面层荷载相当于100mm厚水泥砂浆的重量,梁的转动忽略不计。板受力钢筋保护
[单选题]某钢筋混凝土不上人屋面挑檐剖面如图所示,屋面板混凝土强度等级采用C30,屋面面层荷载相当于100mm厚水泥砂浆的重量,梁的转动忽略不计。板受力钢筋保护