[问答题]

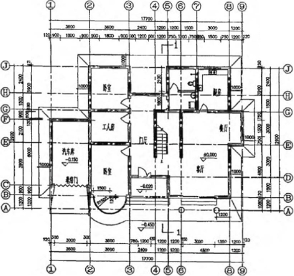
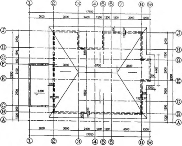
第五题 背景资料:某别墅部分设计如图3-28(1)~3-28(5)所示。墙体除注明外均为240mm厚。
坡屋面构造做法:钢筋混凝土屋面板表面清扫干净,素水泥浆一道,20mm厚1:3水泥砂浆找平,刷热防水膏,采用20mm厚1:3干硬性水泥砂浆防水保护层,25mm厚1:1:4水泥石灰砂浆铺瓦屋面。
卧室地面构造做法:素土夯实,60mm厚C10混凝土垫层,20mm厚1:2水泥砂浆抹面压光。卧室楼面构造做法:150mm现浇钢筋混凝土楼板,素水泥浆一道,20mm厚1:2水泥砂浆抹面压光。

图3-28(1) 一层平面图(1:100)

图3-28(2) 二层平面图(1:100)


图3-28(3) 屋顶平面图(1:100)


图3-28(4) 南立面图(1:100)



问题:
依据《建设工程工程量清单计价规范》编制卧室搂面、地面,坡屋面工程的分部分项工程量清单,填入“分部分项工程量清单”(水泥砂桨楼地面的项目编码为020101001,瓦屋面的项目编码为010701001)。

参考答案与解析:

相关试题

第五题 背景资料:某别墅部分设计如图3-28(1)~3-28(5)所示。墙体除注明外均为240mm厚。<br />坡屋面构造做法:钢筋混凝土屋面板表面清扫干净,素水泥浆一道,20mm厚1:

[问答题]第五题 背景资料:某别墅部分设计如图3-28(1)~3-28(5)所示。墙体除注明外均为240mm厚。坡屋面构造做法:钢筋混凝土屋面板表面清扫干净,素

  • 查看答案
  • 第五题 背景资料:某别墅部分设计如图3-28(1)~3-28(5)所示。墙体除注明外均为240mm厚。<br />坡屋面构造做法:钢筋混凝土屋面板表面清扫干净,素水泥浆一道,20mm厚1:

    [问答题]第五题 背景资料:某别墅部分设计如图3-28(1)~3-28(5)所示。墙体除注明外均为240mm厚。坡屋面构造做法:钢筋混凝土屋面板表面清扫干净,素

  • 查看答案
  • 第五题 背景资料:某别墅部分设计如图3-28(1)~3-28(5)所示。墙体除注明外均为240mm厚。<br />坡屋面构造做法:钢筋混凝土屋面板表面清扫干净,素水泥浆一道,20mm厚1:

    [问答题]第五题 背景资料:某别墅部分设计如图3-28(1)~3-28(5)所示。墙体除注明外均为240mm厚。坡屋面构造做法:钢筋混凝土屋面板表面清扫干净,素

  • 查看答案
  • 某别墅部分设计如图3-15~图3-19所示。墙体除注明外均为240mm厚。坡屋面构造做法:钢筋混凝土屋面板表面清扫干净,素水泥浆一道,20mm厚1:3水泥砂浆找平.刷热防水膏,采用20mm厚1:3干硬

    [问答题]某别墅部分设计如图3-15~图3-19所示。墙体除注明外均为240mm厚。坡屋面构造做法:钢筋混凝土屋面板表面清扫干净,素水泥浆一道,20mm厚1:3

  • 查看答案
  • 某别墅部分设计如图3-15~图3-19所示。墙体除注明外均为240mm厚。坡屋面构造做法:钢筋混凝土屋面板表面清扫干净,素水泥浆一道,20mm厚1:3水泥砂浆找平.刷热防水膏,采用20mm厚1:3干硬

    [问答题]某别墅部分设计如图3-15~图3-19所示。墙体除注明外均为240mm厚。坡屋面构造做法:钢筋混凝土屋面板表面清扫干净,素水泥浆一道,20mm厚1:3

  • 查看答案
  • 第三题 背景资料:某小高层住宅楼建筑部分设计如图3-24所示,共12层,每层层高均为3m,电梯机房与楼梯间部分凸出屋面。<br />墙体除注明者外均为200mm厚加气混凝土墙,轴线位于墙中

    [问答题]第三题 背景资料:某小高层住宅楼建筑部分设计如图3-24所示,共12层,每层层高均为3m,电梯机房与楼梯间部分凸出屋面。墙体除注明者外均为200mm厚

  • 查看答案
  • 第三题 背景资料:某小高层住宅楼建筑部分设计如图3-24所示,共12层,每层层高均为3m,电梯机房与楼梯间部分凸出屋面。<br />墙体除注明者外均为200mm厚加气混凝土墙,轴线位于墙中

    [问答题]第三题 背景资料:某小高层住宅楼建筑部分设计如图3-24所示,共12层,每层层高均为3m,电梯机房与楼梯间部分凸出屋面。墙体除注明者外均为200mm厚

  • 查看答案
  • 第三题 背景资料:某小高层住宅楼建筑部分设计如图3-24所示,共12层,每层层高均为3m,电梯机房与楼梯间部分凸出屋面。<br />墙体除注明者外均为200mm厚加气混凝土墙,轴线位于墙中

    [问答题]第三题 背景资料:某小高层住宅楼建筑部分设计如图3-24所示,共12层,每层层高均为3m,电梯机房与楼梯间部分凸出屋面。墙体除注明者外均为200mm厚

  • 查看答案
  • 某钢筋混凝土不上人屋面挑檐剖面如图所示,屋面板混凝土强度等级采用C30,屋面面层荷载相当于100mm厚水泥砂浆的重量,梁的转动忽略不计。板受力钢筋保护层厚度c=20mm。<br /><

    [单选题]某钢筋混凝土不上人屋面挑檐剖面如图所示,屋面板混凝土强度等级采用C30,屋面面层荷载相当于100mm厚水泥砂浆的重量,梁的转动忽略不计。板受力钢筋保护

  • 查看答案
  • 某钢筋混凝土不上人屋面挑檐剖面如图所示,屋面板混凝土强度等级采用C30,屋面面层荷载相当于100mm厚水泥砂浆的重量,梁的转动忽略不计。板受力钢筋保护层厚度c=20mm。<br /><

    [单选题]某钢筋混凝土不上人屋面挑檐剖面如图所示,屋面板混凝土强度等级采用C30,屋面面层荷载相当于100mm厚水泥砂浆的重量,梁的转动忽略不计。板受力钢筋保护

  • 查看答案
  • 第五题 背景资料:某别墅部分设计如图3-28(1)~3-28(5)所示。墙体除注明外均为240mm厚。<br />坡屋面构造做法:钢筋混凝土屋面板表面清扫干净,素水泥浆一道,20mm厚1: