[单选题]

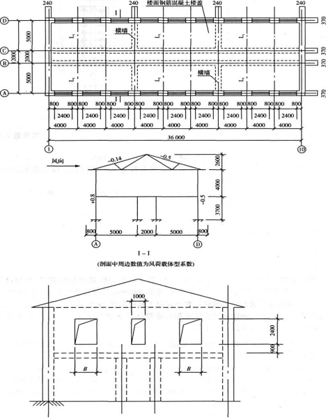
某建筑物如图13所示。墙体采用MU10普通砌砖,M5混合砂浆砌筑,纵墙厚度为370mm。山墙及底层每隔三开间有道横墙,厚度240mm,二层为全空旷房间(无内横墙及内纵墙)。屋面采用装配式有檩体钢筋混凝土屋盖系统。楼面采用装配式梁板结构。屋面恒荷载标准值为9kN/m2(水平投影),活荷载标准值为0.5kN/m2。基本风压值为0.35kN/m2,高度变化系数μz=0。

图13
 假定在二层山墙处开设窗洞,如图13所示。下面关于该山墙是否符合刚性和刚弹性方案房屋横墙条件的几种判断,其中不正确的是?(  )

A.当B=2000mm时,符合条件

B.当B=2500mm时,符合条件

C.当B=3000mm时,不符合条件

D.当B=3000mm时,有可能符合条件

参考答案与解析:

相关试题

某建筑物如图13所示。墙体采用MU10普通砌砖,M5混合砂浆砌筑,纵墙厚度为370mm。山墙及底层每隔三开间有道横墙,厚度240mm,二层为全空旷房间(无内横墙及内纵墙)。屋面采用装配式有檩体钢筋混凝

[单选题]某建筑物如图13所示。墙体采用MU10普通砌砖,M5混合砂浆砌筑,纵墙厚度为370mm。山墙及底层每隔三开间有道横墙,厚度240mm,二层为全空旷房间

  • 查看答案
  • 某建筑物如图13所示。墙体采用MU10普通砌砖,M5混合砂浆砌筑,纵墙厚度为370mm。山墙及底层每隔三开间有道横墙,厚度240mm,二层为全空旷房间(无内横墙及内纵墙)。屋面采用装配式有檩体钢筋混凝

    [单选题]某建筑物如图13所示。墙体采用MU10普通砌砖,M5混合砂浆砌筑,纵墙厚度为370mm。山墙及底层每隔三开间有道横墙,厚度240mm,二层为全空旷房间

  • 查看答案
  • 某建筑物如图13所示。墙体采用MU10普通砌砖,M5混合砂浆砌筑,纵墙厚度为370mm。山墙及底层每隔三开间有道横墙,厚度240mm,二层为全空旷房间(无内横墙及内纵墙)。屋面采用装配式有檩体钢筋混凝

    [单选题]某建筑物如图13所示。墙体采用MU10普通砌砖,M5混合砂浆砌筑,纵墙厚度为370mm。山墙及底层每隔三开间有道横墙,厚度240mm,二层为全空旷房间

  • 查看答案
  • 某建筑物如图13所示。墙体采用MU10普通砌砖,M5混合砂浆砌筑,纵墙厚度为370mm。山墙及底层每隔三开间有道横墙,厚度240mm,二层为全空旷房间(无内横墙及内纵墙)。屋面采用装配式有檩体钢筋混凝

    [单选题]某建筑物如图13所示。墙体采用MU10普通砌砖,M5混合砂浆砌筑,纵墙厚度为370mm。山墙及底层每隔三开间有道横墙,厚度240mm,二层为全空旷房间

  • 查看答案
  • 某五层烧结普通砖房办公楼,装配式钢筋混凝土楼盖,平面如图4-45所示,外纵墙、山墙为360mm墙,其余均为240mm墙,采用MU10烧结普通砖,混合砂浆:首层M10、2~3层M7.5、4~5层M5,抗

    [单选题]某五层烧结普通砖房办公楼,装配式钢筋混凝土楼盖,平面如图4-45所示,外纵墙、山墙为360mm墙,其余均为240mm墙,采用MU10烧结普通砖,混合砂

  • 查看答案
  • 某五层烧结普通砖房办公楼,装配式钢筋混凝土楼盖,平面如图4-45所示,外纵墙、山墙为360mm墙,其余均为240mm墙,采用MU10烧结普通砖,混合砂浆:首层M10、2~3层M7.5、4~5层M5,抗

    [单选题]某五层烧结普通砖房办公楼,装配式钢筋混凝土楼盖,平面如图4-45所示,外纵墙、山墙为360mm墙,其余均为240mm墙,采用MU10烧结普通砖,混合砂

  • 查看答案
  • 某轴心受压内横墙,二层墙厚240mm,采用MU15蒸压粉煤灰砖、M5混合砂浆砌筑

    [单选题]某轴心受压内横墙,二层墙厚240mm,采用MU15蒸压粉煤灰砖、M5混合砂浆砌筑,砌体施工质量控制等级为C级。静力计算方案为刚性方案,墙体高度H为3.3m。试问,二层墙体的承载力设计值(kN/m),与下列何项数值最为接近?()[2008年真题]提示:内墙长度大于6.6m。说明:已按最新规范将本题“MU10”改成“MU15”。A .220B .250C .280D . D.310

  • 查看答案
  • 某办公楼平面布置如图4-31所示,采用装配式钢筋混凝土楼盖,MU10砖墙承重。纵墙及横墙厚度均为240mm,砂浆强度等级M5,底层墙高H=4.5m(从基础顶面算起至一层楼板底面),隔墙厚120mm。则

    [单选题]某办公楼平面布置如图4-31所示,采用装配式钢筋混凝土楼盖,MU10砖墙承重。纵墙及横墙厚度均为240mm,砂浆强度等级M5,底层墙高H=4.5m(从

  • 查看答案
  • 按下列条件确定。图4-21为某办公楼底层局部承重横墙的示意图。墙体厚240mm,横墙间距6m,采用Mu10普通砖、M5混合砂浆砌筑。试验算外纵墙上截面为b×h=240mm×400mm的钢筋混凝土挑梁下

    [单选题]按下列条件确定。图4-21为某办公楼底层局部承重横墙的示意图。墙体厚240mm,横墙间距6m,采用Mu10普通砖、M5混合砂浆砌筑。试验算外纵墙上截面

  • 查看答案
  • 某无吊车单跨单层砌体仓库的无壁柱山墙,如图所示,横墙承重,房屋山墙两侧均有外纵墙。采用MU10蒸压粉煤灰砖、M5混合砂浆砌筑。墙厚为370mm,山墙基础顶面距室外地面300mm。<br />

    [单选题]某无吊车单跨单层砌体仓库的无壁柱山墙,如图所示,横墙承重,房屋山墙两侧均有外纵墙。采用MU10蒸压粉煤灰砖、M5混合砂浆砌筑。墙厚为370mm,山墙基

  • 查看答案
  • 某建筑物如图13所示。墙体采用MU10普通砌砖,M5混合砂浆砌筑,纵墙厚度为370mm。山墙及底层每隔三开间有道横墙,厚度240mm,二层为全空旷房间(无内横墙及内纵墙)。屋面采用装配式有檩体钢筋混凝