[单选题]

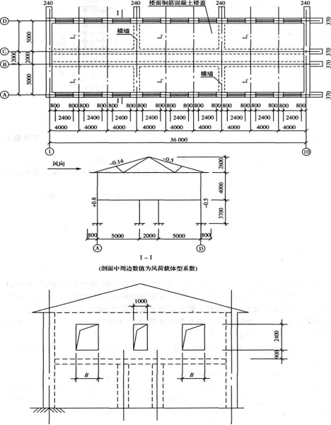
某建筑物如图13所示。墙体采用MU10普通砌砖,M5混合砂浆砌筑,纵墙厚度为370mm。山墙及底层每隔三开间有道横墙,厚度240mm,二层为全空旷房间(无内横墙及内纵墙)。屋面采用装配式有檩体钢筋混凝土屋盖系统。楼面采用装配式梁板结构。屋面恒荷载标准值为9kN/m2(水平投影),活荷载标准值为0.5kN/m2。基本风压值为0.35kN/m2,高度变化系数μz=0。

图13
 假定二层山墙满足刚弹性房屋横墙的构造要求,下列对二层屋面空间性能影响系数η2值的确定,其中何项是正确的?(  )

A.不能考虑空间性能影响系数

B.η2=0.39

C.η2=0.81

D.η2=0.68

参考答案与解析:

相关试题

某建筑物如图13所示。墙体采用MU10普通砌砖,M5混合砂浆砌筑,纵墙厚度为370mm。山墙及底层每隔三开间有道横墙,厚度240mm,二层为全空旷房间(无内横墙及内纵墙)。屋面采用装配式有檩体钢筋混凝

[单选题]某建筑物如图13所示。墙体采用MU10普通砌砖,M5混合砂浆砌筑,纵墙厚度为370mm。山墙及底层每隔三开间有道横墙,厚度240mm,二层为全空旷房间

  • 查看答案
  • 某建筑物如图13所示。墙体采用MU10普通砌砖,M5混合砂浆砌筑,纵墙厚度为370mm。山墙及底层每隔三开间有道横墙,厚度240mm,二层为全空旷房间(无内横墙及内纵墙)。屋面采用装配式有檩体钢筋混凝

    [单选题]某建筑物如图13所示。墙体采用MU10普通砌砖,M5混合砂浆砌筑,纵墙厚度为370mm。山墙及底层每隔三开间有道横墙,厚度240mm,二层为全空旷房间

  • 查看答案
  • 某建筑物如图13所示。墙体采用MU10普通砌砖,M5混合砂浆砌筑,纵墙厚度为370mm。山墙及底层每隔三开间有道横墙,厚度240mm,二层为全空旷房间(无内横墙及内纵墙)。屋面采用装配式有檩体钢筋混凝

    [单选题]某建筑物如图13所示。墙体采用MU10普通砌砖,M5混合砂浆砌筑,纵墙厚度为370mm。山墙及底层每隔三开间有道横墙,厚度240mm,二层为全空旷房间

  • 查看答案
  • 某建筑物如图13所示。墙体采用MU10普通砌砖,M5混合砂浆砌筑,纵墙厚度为370mm。山墙及底层每隔三开间有道横墙,厚度240mm,二层为全空旷房间(无内横墙及内纵墙)。屋面采用装配式有檩体钢筋混凝

    [单选题]某建筑物如图13所示。墙体采用MU10普通砌砖,M5混合砂浆砌筑,纵墙厚度为370mm。山墙及底层每隔三开间有道横墙,厚度240mm,二层为全空旷房间

  • 查看答案
  • 某五层烧结普通砖房办公楼,装配式钢筋混凝土楼盖,平面如图4-45所示,外纵墙、山墙为360mm墙,其余均为240mm墙,采用MU10烧结普通砖,混合砂浆:首层M10、2~3层M7.5、4~5层M5,抗

    [单选题]某五层烧结普通砖房办公楼,装配式钢筋混凝土楼盖,平面如图4-45所示,外纵墙、山墙为360mm墙,其余均为240mm墙,采用MU10烧结普通砖,混合砂

  • 查看答案
  • 某五层烧结普通砖房办公楼,装配式钢筋混凝土楼盖,平面如图4-45所示,外纵墙、山墙为360mm墙,其余均为240mm墙,采用MU10烧结普通砖,混合砂浆:首层M10、2~3层M7.5、4~5层M5,抗

    [单选题]某五层烧结普通砖房办公楼,装配式钢筋混凝土楼盖,平面如图4-45所示,外纵墙、山墙为360mm墙,其余均为240mm墙,采用MU10烧结普通砖,混合砂

  • 查看答案
  • 某轴心受压内横墙,二层墙厚240mm,采用MU15蒸压粉煤灰砖、M5混合砂浆砌筑

    [单选题]某轴心受压内横墙,二层墙厚240mm,采用MU15蒸压粉煤灰砖、M5混合砂浆砌筑,砌体施工质量控制等级为C级。静力计算方案为刚性方案,墙体高度H为3.3m。试问,二层墙体的承载力设计值(kN/m),与下列何项数值最为接近?()[2008年真题]提示:内墙长度大于6.6m。说明:已按最新规范将本题“MU10”改成“MU15”。A .220B .250C .280D . D.310

  • 查看答案
  • 某办公楼平面布置如图4-31所示,采用装配式钢筋混凝土楼盖,MU10砖墙承重。纵墙及横墙厚度均为240mm,砂浆强度等级M5,底层墙高H=4.5m(从基础顶面算起至一层楼板底面),隔墙厚120mm。则

    [单选题]某办公楼平面布置如图4-31所示,采用装配式钢筋混凝土楼盖,MU10砖墙承重。纵墙及横墙厚度均为240mm,砂浆强度等级M5,底层墙高H=4.5m(从

  • 查看答案
  • 按下列条件确定。图4-21为某办公楼底层局部承重横墙的示意图。墙体厚240mm,横墙间距6m,采用Mu10普通砖、M5混合砂浆砌筑。试验算外纵墙上截面为b×h=240mm×400mm的钢筋混凝土挑梁下

    [单选题]按下列条件确定。图4-21为某办公楼底层局部承重横墙的示意图。墙体厚240mm,横墙间距6m,采用Mu10普通砖、M5混合砂浆砌筑。试验算外纵墙上截面

  • 查看答案
  • 某无吊车单跨单层砌体仓库的无壁柱山墙,如图所示,横墙承重,房屋山墙两侧均有外纵墙。采用MU10蒸压粉煤灰砖、M5混合砂浆砌筑。墙厚为370mm,山墙基础顶面距室外地面300mm。<br />

    [单选题]某无吊车单跨单层砌体仓库的无壁柱山墙,如图所示,横墙承重,房屋山墙两侧均有外纵墙。采用MU10蒸压粉煤灰砖、M5混合砂浆砌筑。墙厚为370mm,山墙基

  • 查看答案
  • 某建筑物如图13所示。墙体采用MU10普通砌砖,M5混合砂浆砌筑,纵墙厚度为370mm。山墙及底层每隔三开间有道横墙,厚度240mm,二层为全空旷房间(无内横墙及内纵墙)。屋面采用装配式有檩体钢筋混凝